Поиск объектов
1000Skladov

Аренда цеха от 1500 м² до 4500 м² с кран-балками на 10 тонн на участке 1 га

Код объекта: 20722
Дата создания: 26.02.2026
Дата обновления: 26.02.2026

Подробное описание объекта:

Гатчинский район ЛО, г. Гатчина, ул. Индустриальная, м. Московская

Аренда цеха от 1500 м² до 4500 м² с кран-балками на 10 тонн на участке 1 га

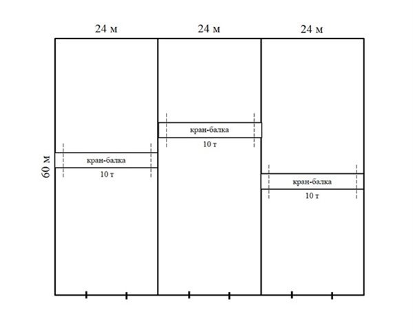
Сдается в аренду отапливаемый цех общей площадью 4500 м² на земельном участке 1 га. Помещение идеально подходит для промышленного производства или логистического комплекса. Высота потолков составляет 12 метров, что обеспечивает простор для любого оборудования. Конструкция здания включает три независимых пролета по 1500 м², каждый из которых оснащен кран-балкой грузоподъемностью 10 тонн с высотой до крюка 8 метров. Возможность арендовать как весь цех, так и отдельные пролеты, аренда одного пролета 1,4 млн. руб в месяц. В каждом пролете предусмотрены собственные ворота для грузового транспорта, обеспечивая бесперебойную логистику. Полы ровные и обеспыленные с нагрузкой 8 тонн на квадратный метр. Объект полностью обеспечен всеми коммуникациями: отопление, водоснабжение, канализация и электроэнергия мощностью 500 кВт на весь цех. 

Цена 845 руб. за кв. м. +НДС 5%

Консультант Андрей Салимов

П50

Код объекта: 20722

Телефон для связи: +7 (812) 642-90-45

Характеристики:

Тип сделки
Аренда
Расположение
г. Гатчина, ул. Индустриальная
Цена
845,00 за м2
Площадь
1500 - 4500 м2
Скачать фото и план

Дополнительные свойства:

  • Только первый этаж
  • Наличие кран-балки
  • Отапливаемый
  • Наличие отопления

Возможное использование:

Склад
Производство

Получить бесплатную консультацию по объекту

Похожие объекты